PRODUCTS >> AUTOMATIC DOOR >> COMMERCIAL REVOLVING DOOR >> CRYSTAL SERIES PART 2
 
COMMERCIAL REVOLVING DOOR
 Crystal Series

alternative optional
Subject to technical modification

Function
Electrical Specification
Installation
Options
Dimensions

<<  PART 1

 Function
 
manual, smooth-running
with rotational damping for speed limitation
positioning drive, rotates the door wings with low force until sealing brushes are applied
power-assisted drive, recommended for large or heavy door leaves with safety edges
quick stop
sensory analysis for automatic starting
electronmechanical interlock, to protect against intruders, remote-controllable, e.g. by means of emergency control switch (no-one is locked in!)
In the event of power failure
freely rotatable
interlocked (electronmechanically, see above, no-one is locked in)

TOP

 Electrical Specification

 
Only with drive or lighting:
electronic controller installed in door drum
Supply:230 V AC 50 Hz

Export variants on request

TOP

 Installation
 
on finished floor
on structural slab
on previously assembled floor ring
connection to drainage system of building
drive in top drum
drive in floor pit
underfloor drive
Detailed drawings of connection variants and of base tray components on request.

TOP

 Options
 
outer body and resp. night locking facility reinforced against vandalism, burglary and (armed) attack
dto. door leaf cross
dto. inner body
lighting
heating - hot-air curtain
emergency power supply
special door handles
control desk or switchboard for remote control (on, off, optional operating mode selection switch and access control functions)

TOP

 PLAN VIEW
  << CLICK FOR DETAILED PICTURE
Four leaf (180°), with night locking leaf

TOP

 ELEVATION
  << CLICK FOR DETAILED PICTURE
Four leaf (180°), body side parts designed as framed glass panels, without central column, underfloor drive

TOP

 ELEVATION
  << CLICK FOR DETAILED PICTURE
Four leaf (180°), body side parts metal cladded, door leaf cross with an allround door leaf frame, drive in top drum

TOP

 LATERAL CONNECTION (example)
  << CLICK FOR DETAILED PICTURE
Consequent thermal protection through thermal isolation of the outer parts of the body in the facade level.

TOP

TOP CONNECTION (example)
  << CLICK FOR DETAILED PICTURE

TOP

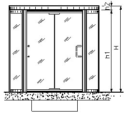
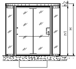
DIMENSIONS
(all dimensions in mm)

For standard dimensions see table, all intermediate sizes available

D outside diameter 2100 2300 2500 2900 3300
di inside diameter 2000 2200 2400 2800 3200
H overall height at least 2200 (without built-in drive)
at least 2300 (with built-in drive)
h1 height of passage at least 2100 (recommended)
h2 top drum at least 100 (without built-in drive)
at least 200 (with built-in drive)

TOP


Home | Product | Specification Services | Technical Support | Enquiry | Company Information
© 2002 Ronstar (Asia) Ltd. All rights reserved